Site Plan

Attic Floor Plan

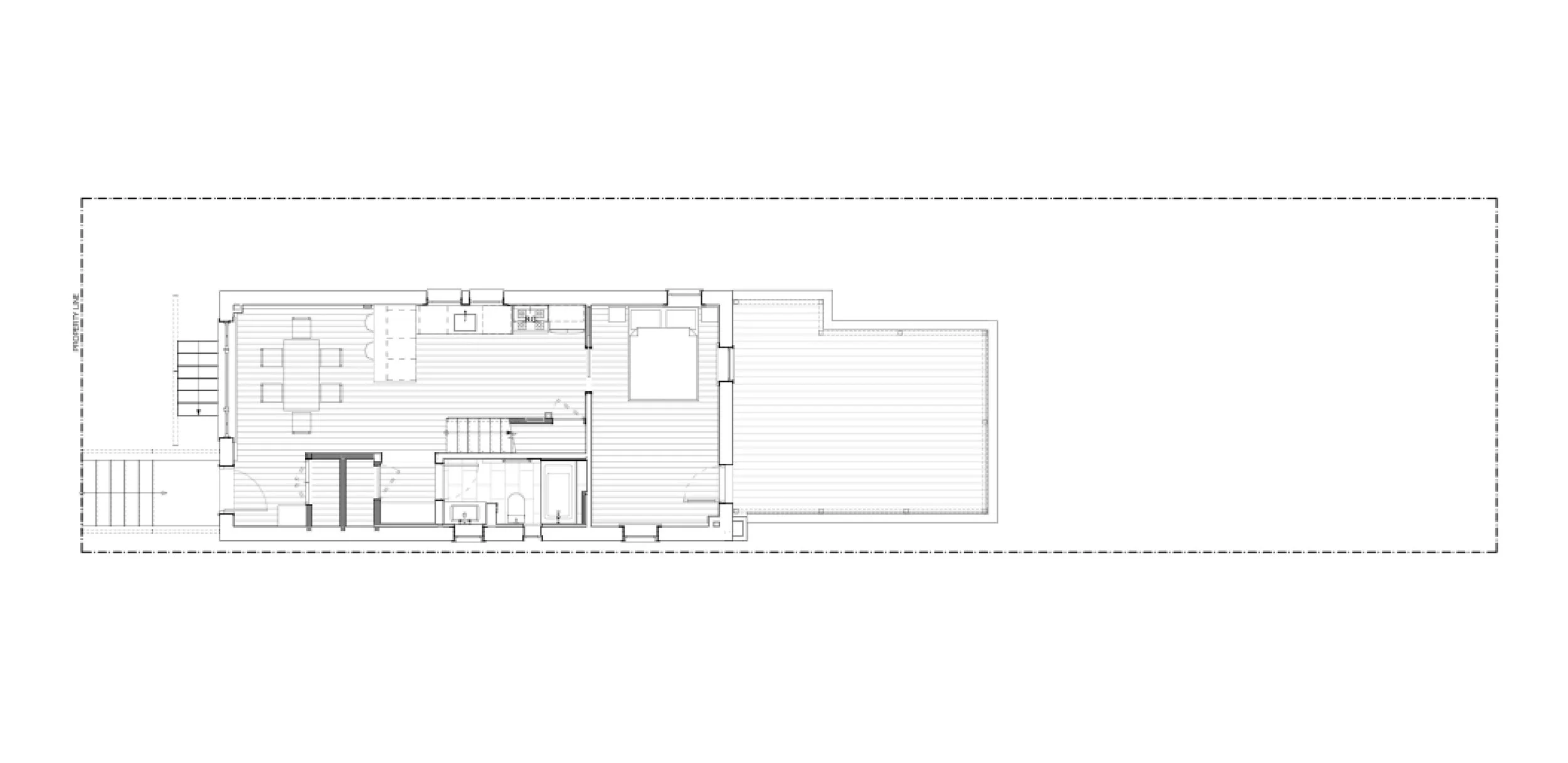
Floor Plan

Basement Floor Plan

Before and After

Before and After

Throgs Neck Residence

This project entails renovations to an existing residential house. Removing a wall has created a centralized zone of open living space. With no constrictions, the living room is open to a refreshing L-shaped kitchen with new furnishings. The staircase was extended to the required codes and is encased with a noticeably-accent color of wood running against the flooring grains.

With a limited budget, the team utilized innovative techniques to enhance design integrity without compromising. In doing so, we focused on unique details that cast their shine. Elevating elements such as door framings, staircase designs, and other materiality of furnishings, flooring, and tilings. In combination with the accent of wood and gray furnishings, each key element stands out on its own.


Location:

Throgs Neck, New York

Client:

Private

Type:

Apartment

Project Date:

Winter 2019

Firm:

Pablo de Miguel Architects

Team Role:

Involved in the planning, SD, DD, CD, and CA stages. Managed the design, documentation and construction administration. Developed the layout to combine a one-bedroom apartment with a studio apartment to accommodate a master bedroom, secondary bedroom, office and living space. Designed and detailed the millwork. Coordinated with the general contractor and the millwork contractor for quality control of construction. 

Previous
Previous

Columbus Circle Residence

Next
Next

Prospect Heights Residence